Siz Hayal Edin ; Biz gerçekleştirelim - A Kalite 1.Sınıf İmalat
Konteyner & Prefabrik

ÜRÜNLERÝMÝZ > OFİS KONTEYNERLERI

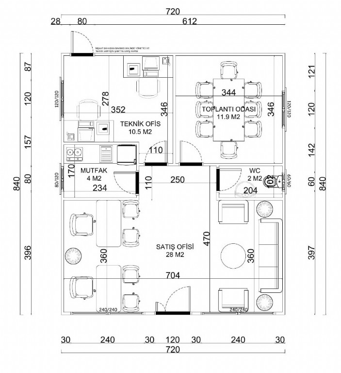
7.20 x 8.40 mt Özel Tasarım Ofis Konteyneri
Ürün Kodu : NGOK005
871 Ýnceleme
7.20 x 8.40 mt Özel Tasarım Ofis Konteyneri

IÇERIK

En : 7.2 metre
Uzunluk : 8.4 metre
Yükseklik : 2.5 metre
Toplan Alan  : 60.52 m2